

SALA COMERCIAL NO CENTRO
R$336.311 / VENDASALA COMERCIAL NO CENTRO
R$336.311Venda
Área Privativa
Cômodos
Condomínio
Proximidades
Descrição do imóvel
Sala Comercial em Prédio Comercial – Excelente Oportunidade!
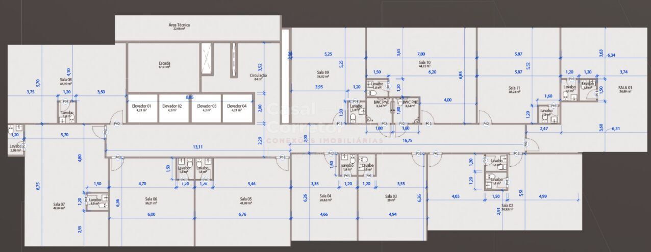
Localizada em um empreendimento moderno e completo, essa sala comercial de 26,82m² é perfeita para quem busca um espaço funcional e bem estruturado para o seu negócio.
O prédio conta com uma infraestrutura de alto padrão, incluindo:
✅ 11 salas por andar e 2 banheiros por pavimento
✅ Quatro elevadores para maior comodidade
✅ Salão de festas e sala de convenção para eventos e reuniões
✅ Academia e gerador de energia para garantir conforto e segurança
✅ Hall de entrada com controle de acesso 24 horas
✅ 230 vagas privativas e rotativas para facilitar o estacionamento
✅ Fachada 100% em pele de vidro, trazendo modernidade e sofisticação ao ambiente
Não perca essa oportunidade! Entre em contato agora mesmo com o Casal Corretor e agende uma visita!
As informações estão sujeitas a alterações. Consulte o corretor responsável.


